ЖК Саввинские пруды
VR-group
Московская область, г. Железнодорожный, ул. Ленина, д.5, к.5А,5Б,5В
-
сдан
-
33.1-64.2 м2
-
1-к кв; 2-к кв
-
с отделкой и без
-
17 эт.
-
214 ФЗ
У вас есть вопросы?
Мы бесплатно перезвоним вам, чтобы рассказать обо всех акциях и о наличии квартир в ЖК "Саввинские пруды"
Планировки квартир в ЖК Саввинские пруды
- Однокомнатные
- Двухкомнатные

- Комнат: 1
- S общ: 34.6
- S жил: 13
- S кухн: 10.4
- Санузел: Совм
- Балкон: есть

- Комнат: 1
- S общ: 40.04
- S жил: 16.2
- S кухн: 12.91
- Санузел: Совм
- Балкон: есть

- Комнат: 1
- S общ: 42.9
- S жил: 18.7
- S кухн: 12.8
- Санузел: Совм
- Балкон: есть

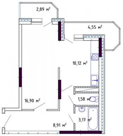
- Комнат: 1
- S общ: 44.4
- S жил: 16.9
- S кухн: 10.12
- Санузел: Разд
- Балкон: есть

- Комнат: 2
- S общ: 59.07
- S жил: 33.74
- S кухн: 10.12
- Санузел: Разд
- Балкон: есть

- Комнат: 2
- S общ: 62.2
- S жил: 34.6
- S кухн: 10.1
- Санузел: Разд
- Балкон: есть

- Комнат: 2
- S общ: 63.09
- S жил: 34.65
- S кухн: 10.23
- Санузел: Разд
- Балкон: есть
Еще 99 вариантов квартир:
Подобрать квартируХарактеристики
- Корпусов: 4
- Этажей: 17
-
Тип дома:
Кирпично-монолитный
- Всего квартир: 601
-
Застройщик:
VR-group
- Договор: 214 ФЗ
-
Срок сдачи:
сдан 2013 г
-
Отделка:
Без отделки, Под ключ (чистовая)
- Жилая площадь: 33.1-64.2 м2
Документы
С проектной декларацией можно ознакомиться на наш.дом.рф









