-
сдан
-
22 эт.
У вас есть вопросы?
Мы бесплатно перезвоним вам, чтобы рассказать обо всех акциях и о наличии квартир в ЖК "Омега 2"
Планировки квартир в ЖК Омега 2
- Однокомнатные
- Двухкомнатные
- Трехкомнатные
- Комнат: 1
- S общ: 34.2
- S жил: 23.1
- Санузел: 3.6
- Балкон: нет
- Комнат: 1
- S общ: 56.1
- S жил: 22
- S кухн: 11.8
- Санузел: 4.2
- Балкон: 4.2
- Комнат: 2
- S общ: 59.4
- S жил: 30.4
- S кухн: 10.6
- Санузел: 4.5
- Балкон: нет
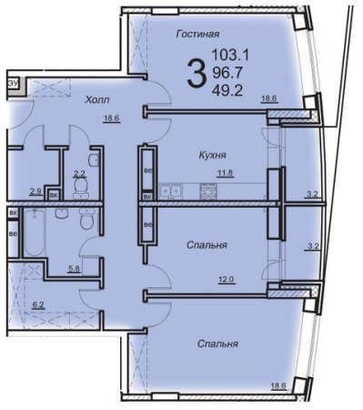
- Комнат: 3
- S общ: 103.1
- S жил: 49.2
- S кухн: 11.8
- Санузел: 5.8
- Балкон: 3.2
- Комнат: 3
- S общ: 107.8
- S жил: 52.6
- S кухн: 11.8
- Санузел: 5.8
- Балкон: 4.2
Еще 107 вариантов квартир:
Подобрать квартируХарактеристики
- Корпусов: 1
- Этажей: 22
-
Тип дома:
Кирпично-монолитный
-
Застройщик:
Невский Альянс
-
Срок сдачи:
сдан 2014 г
Документы
С проектной декларацией можно ознакомиться на наш.дом.рф



