ЖК Резиденция МОНЭ
Резиденция Монэ
Москва, Звенигородская 2-я ул, д.13
Улица 1905 года
-
сдан
-
65.1-267.07 м2
-
2-к кв; 3-к кв; 4-к кв
-
с отделкой
-
18 эт.
У вас есть вопросы?
Мы бесплатно перезвоним вам, чтобы рассказать обо всех акциях и о наличии квартир в ЖК "Резиденция МОНЭ"
Планировки квартир в ЖК Резиденция МОНЭ
- Однокомнатные
- Двухкомнатные
- Трехкомнатные
- Комнат: 1
- S общ: 65.1
- S жил: 16.7
- S кухн: 19.5
- Санузел: раздельный
- Балкон: нет
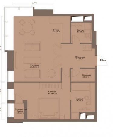
- Комнат: 1
- S общ: 72.65
- S жил: 15.5
- S кухн: 25.1
- Санузел: раздельный
- Балкон: нет
- Комнат: 2
- S общ: 88.84
- S жил: 25.8
- S кухн: 26.3
- Санузел: раздельный
- Балкон: нет
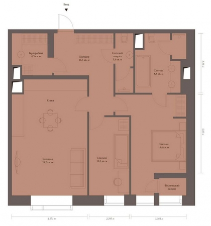
- Комнат: 2
- S общ: 94.18
- S жил: 27.2
- S кухн: 28.2
- Санузел: раздельный
- Балкон: нет

- Комнат: 2
- S общ: 86.83
- S жил: 26.1
- S кухн: 26.2
- Санузел: раздельный
- Балкон: нет

- Комнат: 3
- S общ: 158.5
- S жил: 55.6
- S кухн: 35.5
- Санузел: раздельный
- Балкон: нет
Еще 112 вариантов квартир:
Подобрать квартируХарактеристики
- Корпусов: 1
- Этажей: 18
-
Тип дома:
Кирпично-монолитный
- Всего квартир: 174
-
Застройщик:
Резиденция Монэ
-
Срок сдачи:
сдан 2017 г
-
Отделка:
Под ключ (чистовая)
- Жилая площадь: 65.1-267.07 м2









