-
сдан
-
от 27 до 180 кв. м
-
от студий до 3-спальных апартаментов
-
чистовая отделка и мебель
-
26 эт.
У вас есть вопросы?
Мы бесплатно перезвоним вам, чтобы рассказать обо всех акциях и о наличии квартир в ЖК "The Book"
Планировки квартир в ЖК The Book
- Студии
- Однокомнатные
- Двухкомнатные
- Трехкомнатные

- S общ: 27
- Санузел: совмещенный
- Балкон: нет

- Комнат: 1
- S общ: 44
- Санузел: совмещенный
- Балкон: нет

- Комнат: 1
- S общ: 47
- Санузел: раздельный
- Балкон: нет
.png)
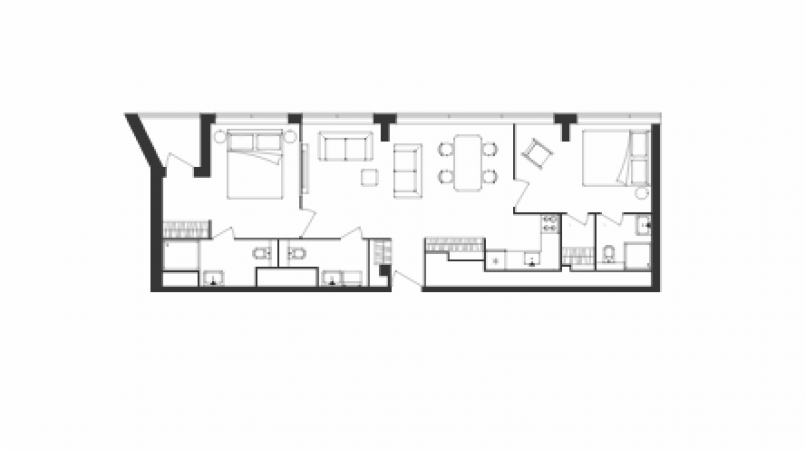
- Комнат: 2
- S общ: 54.7
- Санузел: раздельный
- Балкон: нет
.png)
- Комнат: 2
- S общ: 41.7
- Санузел: раздельный
- Балкон: нет
.png)
- Комнат: 2
- S общ: 43.1
- Санузел: раздельный
- Балкон: нет

- Комнат: 2
- S общ: 66.3
- Санузел: раздельный
- Балкон: нет

- Комнат: 2
- S общ: 72.8
- Санузел: раздельный
- Балкон: нет
.png)
- Комнат: 3
- S общ: 74
- Санузел: раздельный
- Балкон: есть
.png)
- Комнат: 3
- S общ: 76.4
- Санузел: раздельный
- Балкон: нет

- Комнат: 3
- S общ: 143
- Санузел: раздельный
- Балкон: да

- Комнат: 3
- S общ: 148
- Санузел: раздельный
- Балкон: да

- Комнат: 3
- S общ: 74.6
- Санузел: раздельный
- Балкон: нет
Еще 110 вариантов квартир:
Подобрать квартируХарактеристики
- Корпусов: 1
- Этажей: 26
-
Тип дома:
Кирпично-монолитный
- Всего квартир: 175
-
Застройщик:
Capital Group
-
Срок сдачи:
сдан 2020 г
-
Отделка:
С отделкой, мебелью и техникой
-
Тип здания:
Апартаменты
- Жилая площадь: от 27 до 180 кв. м
Документы
С проектной декларацией можно ознакомиться на наш.дом.рф







.jpg)

