ЖК Балтийский
РГ-Девелопмент
Москва, Старопетровский проезд, д.8, к.1,2,3
Войковская
-
сдан
-
от 31 до 126 кв. м
-
квартиры от студий до 4-комнатных, классические и евро-планировки
-
без отделки
-
17-22 эт.
У вас есть вопросы?
Мы бесплатно перезвоним вам, чтобы рассказать обо всех акциях и о наличии квартир в ЖК "Балтийский"
Планировки квартир в ЖК Балтийский
- Студии
- Однокомнатные
- Двухкомнатные
- Трехкомнатные
- Четырехкомнатные
.png)
- S общ: 30.9
- S жил: 21.9
- Санузел: совмещенный
- Балкон: нет
.png)
- Комнат: 1
- S общ: 40.7
- S жил: 17
- S кухн: 11.2
- Санузел: совмещенный
- Балкон: нет
.png)
- Комнат: 1
- S общ: 44.6
- S жил: 16.5
- S кухн: 13.4
- Санузел: совмещенный
- Балкон: нет
.png)
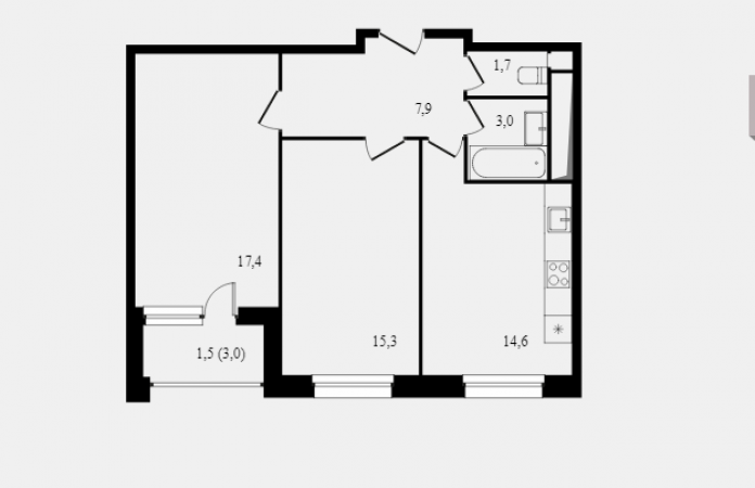
- Комнат: 2
- S общ: 61.4
- S жил: 32.7
- S кухн: 14.6
- Санузел: раздельный
- Балкон: есть
.png)
- Комнат: 2
- S общ: 62.6
- S жил: 31.9
- S кухн: 12.7
- Санузел: раздельный
- Балкон: есть

- Комнат: 3
- S общ: 87
- S жил: 52.6
- S кухн: 14.7
- Санузел: раздельный
- Балкон: есть

- Комнат: 3
- S общ: 71.3
- S жил: 30.4
- S кухн: 21.3
- Санузел: раздельный
- Балкон: есть

- Комнат: 4
- S общ: 99.1
- S жил: 50.6
- S кухн: 19.1
- Санузел: раздельный
- Балкон: есть
Еще 135 вариантов квартир:
Подобрать квартируХарактеристики
- Корпусов: 3
- Этажей: 17-22
-
Тип дома:
Монолитный
- Высота потолков: 3,00
- Всего квартир: 728
-
Застройщик:
РГ-Девелопмент
-
Срок сдачи:
сдан 2021 г
-
Отделка:
Без отделки
- Материал стен: Монолит-кирпич
- Свободная планировка: Нет
- Класс энергоэффективности здания: B
- Жилая площадь: от 31 до 126 кв. м
- Выдача ключей: 31.03.2022
Документы
С проектной декларацией можно ознакомиться на наш.дом.рф









