ЖК Героев
Главстрой-Регионы
Московская область, Балашиха г, Железнодорожный мкр, проспект Героев
МЦД-4 Железнодорожная
-
2 квартал, 2026, есть сданные корпуса
-
от 23,2 до 80,6 м²
-
студии, 1-к кв, 2-к кв, 3-к кв, 2-евро, 3-евро, 4-евро
-
чистовая отделка (в двух вариантах)
-
20 эт.
У вас есть вопросы?
Мы бесплатно перезвоним вам, чтобы рассказать обо всех акциях и о наличии квартир в ЖК "Героев"
Планировки квартир в ЖК Героев
- Студии
- Однокомнатные
- Двухкомнатные
- Трехкомнатные
- Четырехкомнатные
- S общ: 24.80
- S жил: 13.85
- Санузел: совмещенный
- Балкон: есть

- S общ: 25.1
- S жил: 18.2
- Санузел: совмещенный
- Балкон: есть

- S общ: 23.4
- S жил: 13
- Санузел: совмещенный
- Балкон: есть
- Комнат: 1
- S общ: 34.22
- S жил: 12.40
- S кухн: 10.75
- Санузел: совмещенный
- Балкон: есть
- Комнат: 1
- S общ: 32.87
- S жил: 12.37
- S кухн: 10.83
- Санузел: совмещенный
- Балкон: есть

- Комнат: 1
- S общ: 33.4
- S жил: 11.8
- S кухн: 11.3
- Санузел: совмещенный
- Балкон: есть

- Комнат: 1
- S общ: 34
- S жил: 10.4
- S кухн: 10.4
- Санузел: совмещенный
- Балкон: есть
- Комнат: 2
- S общ: 51.41
- S жил: 25.08
- S кухн: 10.95
- Санузел: раздельный
- Балкон: есть
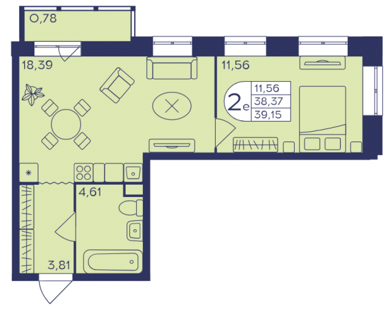
- Комнат: 2
- S общ: 39.15
- S жил: 11.56
- S кухн: 18.39
- Санузел: совмещенный
- Балкон: есть

- Комнат: 2
- S общ: 47.8
- S жил: 28
- S кухн: 9.4
- Санузел: раздельный
- Балкон: есть

- Комнат: 2
- S общ: 33.7
- S жил: 9.7
- S кухн: 16
- Санузел: совмещенный
- Балкон: есть

- Комнат: 2
- S общ: 40.7
- S жил: 12
- S кухн: 16.6
- Санузел: совмещенный
- Балкон: есть
- Комнат: 3
- S общ: 68.73
- S жил: 41.63
- S кухн: 10.70
- Санузел: раздельный
- Балкон: есть

- Комнат: 3
- S общ: 63.4
- S жил: 22.7
- S кухн: 23.5
- Санузел: совмещенный
- Балкон: есть

- Комнат: 3
- S общ: 65
- S жил: 36.2
- S кухн: 10.6
- Санузел: раздельный
- Балкон: есть

- Комнат: 3
- S общ: 51.2
- S жил: 22.6
- S кухн: 13.2
- Санузел: совмещенный
- Балкон: есть

- Комнат: 3
- S общ: 59.4
- S жил: 20.9
- S кухн: 22.4
- Санузел: раздельный
- Балкон: есть

- Комнат: 4
- S общ: 70.4
- S жил: 36
- S кухн: 20.4
- Санузел: раздельный
- Балкон: есть
Еще 55 вариантов квартир:
Подобрать квартируХарактеристики
- Класс: Комфорт
- Корпусов: 20
- Этажей: 20
-
Тип дома:
Монолитный
- Высота потолков: 2,70
- Всего квартир: 854
-
Застройщик:
Главстрой-Регионы
- Юридическое лицо: ООО ГС-САВВИНО - СПЕЦЗАСТРОЙЩИК
-
Срок сдачи:
2кв. 2026
-
Отделка:
Под ключ (чистовая)
- Материал стен: Монолит-кирпич
- Свободная планировка: Нет
- Класс энергоэффективности здания: B
- Жилая площадь: от 23,2 до 80,6 м²
- Выдача ключей: 31.05.2023
Документы
С проектной декларацией можно ознакомиться на наш.дом.рф
Описание и фото ЖК Героев
1/5
Очереди
Срок сдачи
Корпусов
Корпуса
Квартир
Этажность
1 очередь
2 очередь
3 очередь
3 очередь
Срок сдачи 4 квартал 2022
Корпусов 2
Корпуса Корпус 2262499 Корпус 2262499
Квартир 472
Этажность 21-21
4 очередь
4 очередь
Срок сдачи 1 квартал 2023
Корпусов 2
Корпуса Корпус 2262499 Корпус 2262499
Квартир 676
Этажность 21-21
5 очередь
6 очередь
7 очередь
8 очередь
9 очередь
10 очередь
11 очередь
12 очередь
13 очередь
ЖК "Героев" на карте









